Rif: IMMO-109285451
CASTELLAMMARE DEL GOLFO
TRAPANI
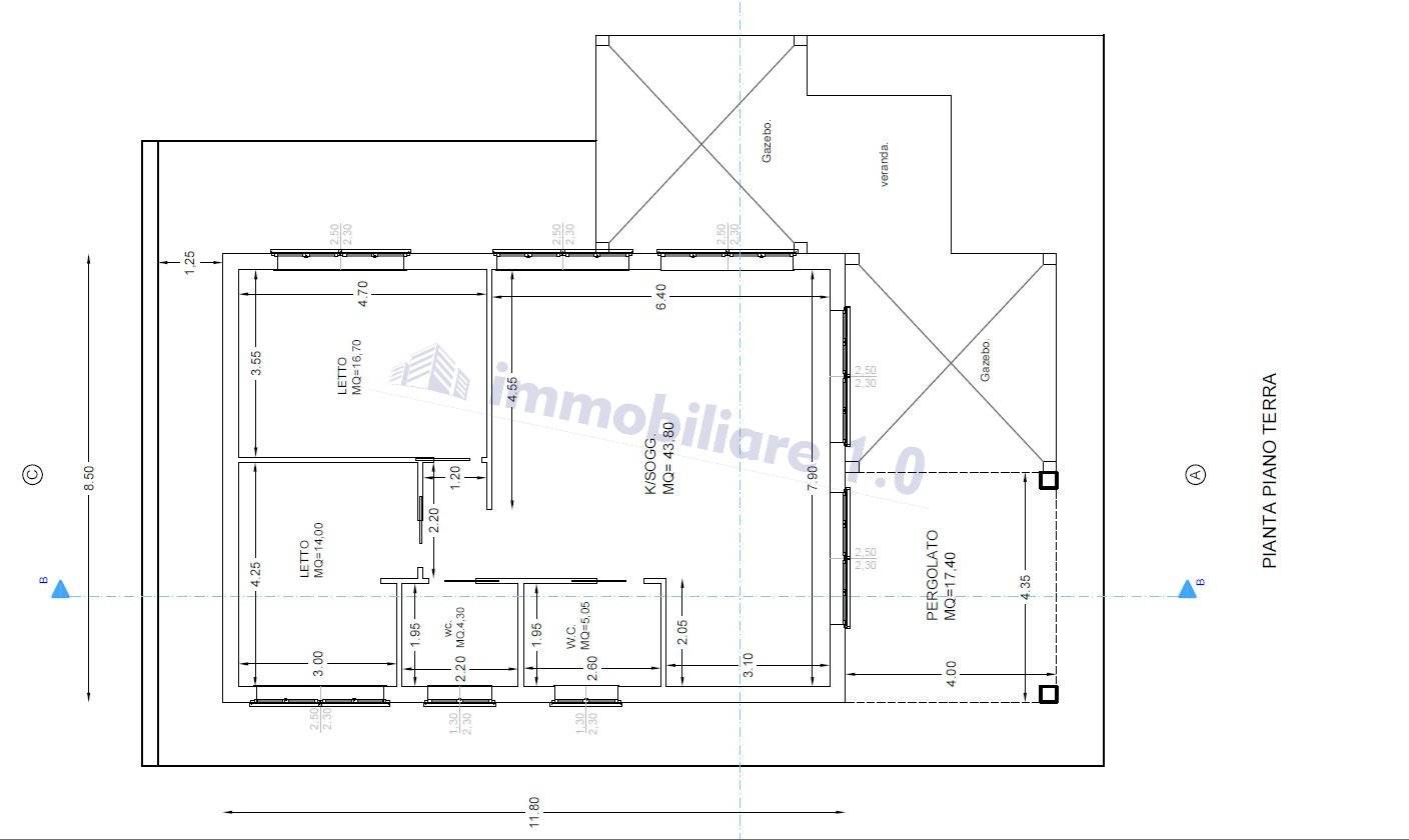
La Villa disporrà di un' ampia cucina, più che abitabile, un soggiorno con una comoda zona relax. Nella zona notte troviamo due camere da letto dalle proporzioni generose etc. Questa villa avrà un pergolato esterno di 17 mq circa oltre due verande e un gazebo, sarà dotata di piscina a sfioro sul mare e di un giardino mediterraneo a giro, ricco di essenze aromatiche con vista mozzafiato sulla baia di Guidaloca. La proprietà si estenderà per circa 4.000 mq. è sarà delimitata da muri in pietra e recinzione a giro secondo quanto previsto dalla normativa vigente, in un luogo dove la sovraintendenza giustamente tende a preservare il territorio, rendendolo unico al Mondo. La Villa Sorgerà in prossimità della riserva naturale dello Zingaro, nota per la natura incontaminata, per gli innumerevoli percorsi che giungono sino alle porte di San vito lo capo e per le acque cristalline, che il mondo ci invidia. A pochi minuti l'antico borgo seicentesco di Scopello, a 5 km la pittoresca cittadina di Castellammare, famosa per la bellissima spiaggia di sabbia, per le pregiate acque sulfuree e per la piacevole vita notturna che prende vita ogni sera, nel vecchio porto turistico. Grazie alla posizione collinare della villa è possibile godere delle belle serate siciliane senza soffrire le temperature troppo elevate e bere del buon vino con l'incredibile vista panoramica della costa e della natura circostante. Si precisa che verranno utilizzati materiali di pregio e sistemi tecnologici di ultima generazione. Aeroporto Palermo Falcone / Borsellino- Trapani Birgi – 35km Segesta 28km Scopello 4km ( La Villa si trova in fase progettuale, per cui in questo momento può essere ripensata ed adattata alle necessità ed al gusto di chi si approccia all'acquisto. Progetto approvato con esecuzione immediata. Non esitate a chiamarci per ulteriori info o per effettuare un sopralluogo.
Consistenze
| Descrizione | Superficie | Sup. comm. |
|---|---|---|
| Principali | ||
| Immobile - piano terra | 95 Mq | 95 Mqc |
| Terreno - piano terra | 4.000 Mq | 0 Mqc |
| Totale | 95 Mqc | |

